
產品詳情
ZCZG高溫高壓電磁閥產品概述:
ZCZG/ZCZH高溫高壓電磁閥是先導直動型的電磁閥,其通用介質范圍較廣,可分別使用于水、輕油、重油、非腐蝕性氣體及蒸汽等流體,如電站抽氣管道疏水系統和蒸發器的排氣系統中,主要是對管道中的介質進行雙位自動調節和遠程控制。
結構特點
耐高溫:采用金屬硬密封,提高了使用溫度。介質流體溫度可達425℃
耐磨:選材合理,閥杯和導向套間巧妙地利用流體的潤滑作用,減少磨損。
采用杠桿原理保證線圈和閥體徹底隔離
耐高溫:采用金屬硬密封,提高了使用溫度。介質流體溫度可達425℃
耐磨:選材合理,閥杯和導向套間巧妙地利用流體的潤滑作用,減少磨損。
采用杠桿原理保證線圈和閥體徹底隔離
結構原理
電磁閥電磁鐵通電時,連桿被提升,帶動轉軸轉動,副閥打開。由于副閥被開啟,
主閥閥杯上部的壓力流體被排出,因此主閥閥杯下部的壓力比上部高,這樣下部的壓力將主閥閥杯向上推開。主閥被打開后,上下壓力相等,閥杯在電磁力、上下壓力作用下,置于平衡狀態,閥門開通。斷電時在銜鐵自重及返回彈簧作用下, 關下副閥,副閥關閉后,隨之主閥閥杯上部的壓力升高而將主閥閥杯壓下,達到斷流密封作用,閥門關閉。
電磁閥電磁鐵通電時,連桿被提升,帶動轉軸轉動,副閥打開。由于副閥被開啟,
主閥閥杯上部的壓力流體被排出,因此主閥閥杯下部的壓力比上部高,這樣下部的壓力將主閥閥杯向上推開。主閥被打開后,上下壓力相等,閥杯在電磁力、上下壓力作用下,置于平衡狀態,閥門開通。斷電時在銜鐵自重及返回彈簧作用下, 關下副閥,副閥關閉后,隨之主閥閥杯上部的壓力升高而將主閥閥杯壓下,達到斷流密封作用,閥門關閉。
型號說明

技術參數
介質溫度℃
|
ZCZG
|
≤250
|
|||||||
ZCZH
|
≤400
|
||||||||
公稱壓力(MPa)
|
ZCZG
|
2.5
|
|||||||
ZCZH
|
4.0
|
||||||||
工作壓差(MPa)
|
ZCZG
|
0.1-2.5
|
|||||||
ZCZH
|
0.1-4.0
|
||||||||
公稱通徑(MPa)
|
15
|
20
|
25
|
32
|
40
|
50
|
65
|
80
|
100
|
功耗
|
130VA
|
480VA
|
|||||||
電源電壓
|
AC220V DC 24V 其余規格可作特殊訂貨
|
||||||||
額定流量系數(KV)
|
3.8
|
7.4
|
10.3
|
18.8
|
25.7
|
41
|
58
|
85
|
154
|
泄漏量(ml/min)
|
按JB/T7352-94·F規定
|
||||||||
![]() |
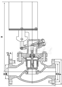
安裝尺寸
DN
|
L
|
H
|
D
|
D1
|
D2
|
D3
|
b
|
f1
|
f
|
n-d
|
10
|
160
|
298
|
90
|
60
|
34
|
41
|
16
|
4
|
2
|
4-Ø14
|
15
|
160
|
298
|
95
|
65
|
39
|
45
|
16
|
4
|
2
|
4-Ø14
|
20
|
200
|
304
|
105
|
75
|
50
|
55
|
16
|
4
|
2
|
4-Ø14
|
25
|
200
|
304
|
115
|
85
|
57
|
65
|
16
|
4
|
2
|
4-Ø14
|
32
|
200
|
314
|
140
|
100
|
65
|
78
|
18
|
4
|
2
|
4-Ø18
|
40
|
260
|
460
|
150
|
110
|
75
|
85
|
18
|
4
|
3
|
4-Ø18
|
50
|
300
|
460
|
165
|
125
|
87
|
100
|
20
|
4
|
3
|
4-Ø18
|
65
|
290
|
433
|
185
|
145
|
109
|
120
|
22
|
4
|
3
|
8-Ø18
|
80
|
310
|
433
|
200
|
160
|
120
|
135
|
22
|
4
|
3
|
8-Ø18
|
100
|
350
|
461
|
235
|
190
|
149
|
160
|
24
|
4.5
|
3
|
8-Ø22
|





